Projects

Lewes Road 2


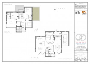
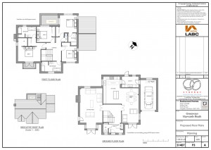
Approximately half an acre, this attractive, former quarry site, was previously landscaped to form a charming sunken garden with pond and rills, together with wandering footpaths among specimen trees and shrubs.

Two separate planning consents, one of traditional and one of contemporary design, have now been granted for an exceptional and individual, detached home, set amidst mature trees and overlooking the attractive water garden.